全2棟〈ZEH水準〉中尾1丁目 新築戸建 1号棟

新築一戸建て

NEW

おすすめ

特徴

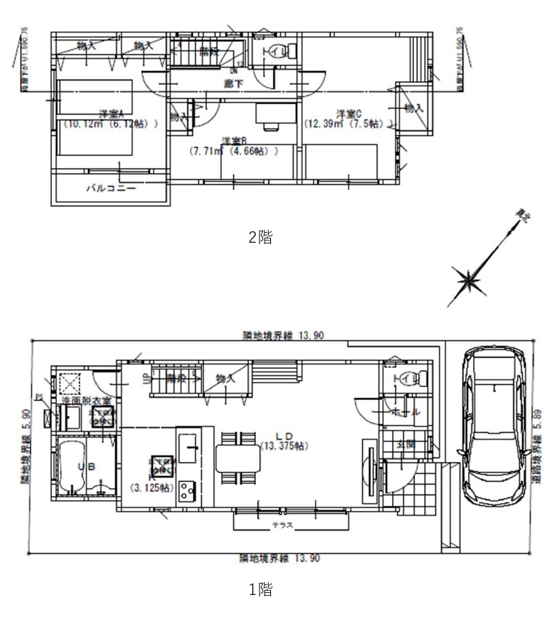
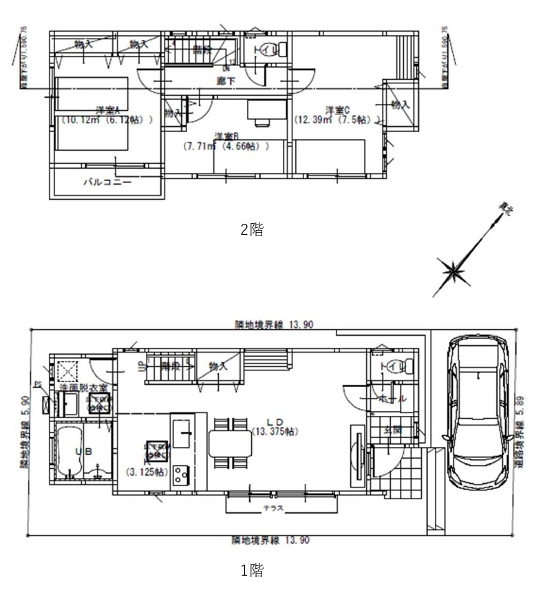
■ZEH水準の省エネ住宅!■相鉄線「希望ケ丘」駅徒歩11分!■3LDKタイプ!

  • 所在地

    神奈川県横浜市旭区中尾1丁目

  • 交通

    相模鉄道本線「希望ケ丘」 駅徒歩11分

  • 建物面積

    82.02㎡(24.81坪)

  • 敷地面積

    82.02㎡(24.81坪)公簿

  • 間取り

    3LDK

  • 築年月

    2025年8月

ポイント
ライフインフォメーション
周辺地図
物件概要
ローンシミュレーション

お問い合わせ店舗: 二俣川店

0120-193-540

物件番号

TAA07518

二俣川店

営業時間:10:00~19:00
※状況により変更する場合があります。詳細は店舗へご連絡ください
定休日:年中無休(施設休館日を除く)

◇相鉄グループの不動産事業を担う相鉄不動産販売は、「快適な暮らしをサポートするスペシャリスト」として、相鉄沿線をはじめ神奈川県下にネットワークをもつ総合不動産会社です。
その中でも『二俣川店』は、再開発により変貌を遂げる相鉄線二俣川地域をターミナルに、旭・泉・瀬谷・保土ヶ谷エリアにステージを広げサービスを提供しております。
◇『二俣川店』は地域に精通したスタッフが、お客様のご要望にご満足いただけるお手伝いをいたします。
特に、ご高齢のお客様には分かり易い言葉と丁寧な対応を心掛けております。難しい税金・債務・相続問題などもお気軽にご相談ください。
是非、相鉄グループの実績と信頼・安心感をお客様自身でご実感ください。
◇都心への延伸が期待される相鉄線「二俣川駅」改札直進、ジョイナステラス二俣川2階にて、年中無休(10:00~21:00※施設休館日を除く)でお客様のご来店をお待ち申し上げております。
◇お車でお越しの際は、提携駐車場をご利用ください。

© SOTETSU REAL ESTATE SALES Co.,Ltd.
PAGE
TOP