ザ・ヨコハマタワーズタワーイースト(30階)

中古マンション

おすすめ

特徴

JR各線・横浜市営地下鉄BL・東急東横線・みなとみらい線・京急本線・相鉄線「横浜」駅徒歩11分の好立地マンション!2025年4月リフォーム済!

  • 所在地

    神奈川県横浜市神奈川区栄町

  • 交通

    東急東横線「横浜」 駅徒歩11分

  • 専有面積

    69.89㎡(21.14坪)

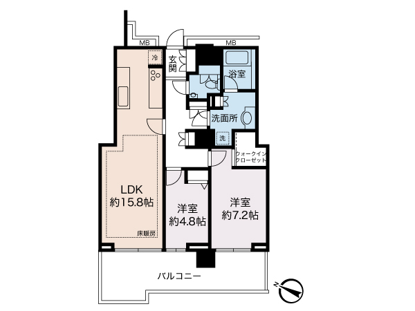
  • 間取り

    2LDK

  • 築年月

    2003年9月

ポイント
ライフインフォメーション
リフォーム内容
周辺地図
物件概要
ローンシミュレーション

お問い合わせ店舗: 横浜店

0120-755-151

物件番号

TAA07428

横浜店

営業時間:10:00~21:00
※状況により変更する場合があります。詳細は店舗へご連絡ください。
定休日:年中無休(施設休館日を除く)

◇相鉄グループの不動産事業を担う相鉄不動産販売は、「快適な暮らしをサポートするスペシャリスト」として、相鉄沿線をはじめ神奈川県下にネットワークをもつ総合不動産会社です。
その中でも『横浜店』は最も歴史の長い店舗であり、流通事業部門のランドマーク的な店舗と位置づけられています。相鉄沿線をはじめ、東京都内や神奈川県全域をエリアとしサービスを提供しております。
◇『横浜店』は地域に精通したスタッフが、お客様のご要望にご満足いただけるお手伝いを約束いたします。
是非、相鉄グループの実績と信頼・安心感をお客様自身でご実感ください。
◇国内有数の巨大ターミナル「横浜駅」から直結の相鉄ジョイナスB1Fにて、年中無休(10:00~21:00※施設休館日を除く)でお客様のご来店をお待ち申し上げております。
◇お車でお越しの際は、提携駐車場をご利用ください。

© SOTETSU REAL ESTATE SALES Co.,Ltd.
PAGE
TOP