横浜市戸塚区名瀬町 一戸建

中古一戸建て

NEW

おすすめ

特徴

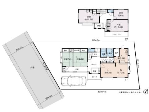
~ ゆとりある75坪の敷地に建つ 5LDKの日本家屋 ~

  • 所在地

    神奈川県横浜市戸塚区名瀬町

  • 交通

    相模鉄道いずみ野線「緑園都市」 駅徒歩19分
    横須賀線「東戸塚」 バス12分「横浜緑園高校入口」バス停徒歩2分

  • 建物面積

    173.89㎡(52.60坪)

  • 敷地面積

    247.96㎡(75.00坪)公簿

  • 間取り

    5LDK

  • 築年月

    1995年7月

ポイント
ライフインフォメーション
周辺地図
物件概要
ローンシミュレーション

お問い合わせ店舗: 緑園都市店

0120-092-103

物件番号

SRE16195

緑園都市店

営業時間:10:00~18:00
※状況により変更する場合があります。詳細は店舗へご連絡ください。
定休日:毎週水曜日

◇相鉄グループの不動産事業を担う相鉄不動産販売は、「快適な暮らしをサポートするスペシャリスト」として、相鉄沿線をはじめ神奈川県下にネットワークをもつ総合不動産会社です。
その中でも『緑園都市店』は、泉区・戸塚区をはじめ相鉄いずみ野線沿線、特に「緑園都市・西が岡・領家周辺エリア」を中心にサービスを提供しております。
◇『緑園都市店』は地域に精通したスタッフが、お客様のご要望にご満足いただけるお手伝いを約束いたします。
住まいに関することから、暮らしに関することまでワンストップで対応しております。
是非、相鉄グループの実績と信頼・安心感をお客様自身でご実感ください。
◇相鉄いずみ野線緑園都市駅の目の前、相鉄ライフ緑園都市1Fにございます。
営業時間 10:00~18:00(年末年始等除く)でお客様のご来店をお待ち申し上げております。
◇お車でお越しの際は、提携駐車場をご利用ください。

© SOTETSU REAL ESTATE SALES Co.,Ltd.
PAGE
TOP