エンゼルコート新川崎

中古マンション

  • 所在地

    神奈川県川崎市幸区北加瀬2丁目

  • 交通

    横須賀線「新川崎」 駅徒歩15分
    東急東横線「元住吉」 駅徒歩20分
    南武線「鹿島田」 駅徒歩22分

  • 専有面積

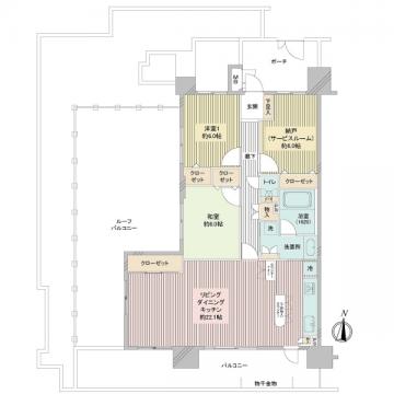
    89.70㎡(27.13坪)

  • 間取り

    2SLDK

  • 築年月

    2002年6月

周辺地図
物件概要
ローンシミュレーション

お問い合わせ店舗: 横浜店

0120-755-151

物件番号

OBG82122

横浜店

営業時間:10:00~21:00
※状況により変更する場合があります。詳細は店舗へご連絡ください。
定休日:年中無休(施設休館日を除く)

◇相鉄グループの不動産事業を担う相鉄不動産販売は、「快適な暮らしをサポートするスペシャリスト」として、相鉄沿線をはじめ神奈川県下にネットワークをもつ総合不動産会社です。
その中でも『横浜店』は最も歴史の長い店舗であり、流通事業部門のランドマーク的な店舗と位置づけられています。相鉄沿線をはじめ、東京都内や神奈川県全域をエリアとしサービスを提供しております。
◇『横浜店』は地域に精通したスタッフが、お客様のご要望にご満足いただけるお手伝いを約束いたします。
是非、相鉄グループの実績と信頼・安心感をお客様自身でご実感ください。
◇国内有数の巨大ターミナル「横浜駅」から直結の相鉄ジョイナスB1Fにて、年中無休(10:00~21:00※施設休館日を除く)でお客様のご来店をお待ち申し上げております。
◇お車でお越しの際は、提携駐車場をご利用ください。

© SOTETSU REAL ESTATE SALES Co.,Ltd.
PAGE
TOP