東京都町田市つくし野2丁目

中古一戸建て

  • 所在地

    東京都町田市つくし野2丁目

  • 交通

    東急田園都市線「つくし野」 駅徒歩4分

  • 建物面積

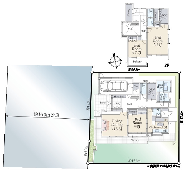
    194.27㎡(58.76坪)

  • 敷地面積

    331.35㎡(100.23坪)公簿

  • 間取り

    3SLDK

  • 築年月

    1993年3月

周辺地図
物件概要
ローンシミュレーション

お問い合わせ店舗: 海老名店

0120-090-367

物件番号

OBA02240

海老名店

営業時間:10:00~18:00
※状況により変更する場合があります。詳細は店舗へご連絡ください。
定休日:毎週水曜日

◇相鉄グループの不動産事業を担う相鉄不動産販売は、「快適な暮らしをサポートするスペシャリスト」として、相鉄沿線をはじめ神奈川県下にネットワークをもつ総合不動産会社です。
その中でも『海老名店』はおかげさまで開設から30年を超えました。相鉄沿線をはじめ、特に「海老名市」・「綾瀬市」・「大和市」・「座間市」エリアを中心にサービスを提供しております。
◇『海老名店』は地域に精通したスタッフが、お客様のご要望にご満足いただけるお手伝いを約束いたします。
「海老名市」・「綾瀬市」・「大和市」・「座間市」を中心にお住み替えをご検討されているお客様はお気軽にご相談ください。
是非、相鉄グループの実績と信頼・安心感をお客様自身でご実感ください。
◇相鉄線海老名駅から徒歩5分、「横浜銀行 海老名支店」前にございます。
営業時間 10:00~18:00(水曜定休日)でお客様のご来店をお待ち申し上げております。
◇お車でお越しの際は、提携駐車場をご利用ください。

© SOTETSU REAL ESTATE SALES Co.,Ltd.
PAGE
TOP